ようこそ ゲスト 様

中央区 賃貸事務所

TWG日本橋イーストⅡ

お問い合わせ番号:f11124-159491
賃貸事務所
中央区日本橋富沢町10-11
都営新宿線 馬喰横山駅 ( 徒歩 3分 )
賃料 63.12万円(税別)
(坪単価:2.10万円)
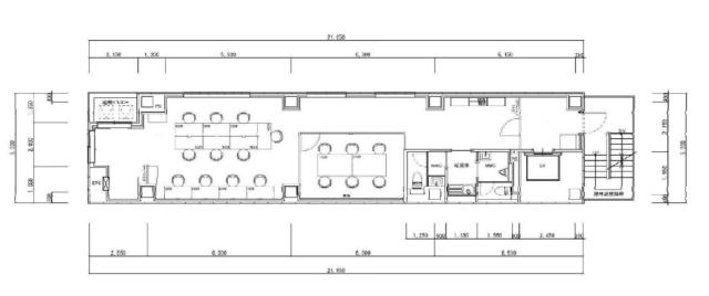
馬喰横山駅・東日本橋駅徒歩3分のセットアップオフィス物件のご紹介です。
普通賃貸借契約3年、償却費なし、更新料なし

セットアップオフィスとは、内装工事済でオフィス什器・家具などが備え付けられたすぐにオフィスとして使用できる物件になります。
管理費 -
保証金
解約引
-
-
敷金
礼金
6ヶ月
-
建物/専有
面積
99.39m2
(30.06坪)
土地面積 - 築年月 2023年1月
(令和5年1月)
駐車場 - 所在階 6階 地上階数
地下階数
10階
-
構造 鉄骨造
現況 空き
入居/引渡 即時 
契約期間 3年
取引 仲介
物件登録日 2026年1月28日
情報更新日 2026年1月28日
エレベーター:1基
空調:個別空調(冷暖切替はビル側で実施)
OAフロア:基準階50mm
天井高:2,830mm(OA上から)
床荷重:300kg/㎡
セキュリティ:24時間機械警備 EV不停止連動
改修工事:2023年1月完了(外観 一部貸室内)
設備:照明LED、電気温水器、トイレ男女別(専有部)
当物件は弊社が貸主様より直接募集の依頼を受けております。

TWG日本橋イーストⅡ 周辺地図

TWG日本橋イーストⅡ のことならお気軽にご相談ください。
テナントショップ人形町(レジスタ合同会社)
TEL:03-3527-2637
営業時間:9:00-17:00
定休日 :日曜・祝日
メールでのお問い合わせ

お電話の場合は「テナントショップを見ました。物件番号は < f11124-159491 > です」と伝えていただくとスムーズにお応えできます。

  • 借りる
  • テナント・貸店舗を探す
  • オフィス・事務所を探す
  • 倉庫・工場を探す
  • 貸土地・借地を探す
  • 居抜き物件
  • 買う
  • 売買物件を探す
非公開物件情報
一般公開物件
381
会員用非公開物件
0
  • ログイン
  • 新規登録
  • 依頼する
  • 新着物件!未公開物件!地元に詳しい!
  • 物件リクエスト
検索する
スペース区切りの複合語句検索はできません

  • スマホで物件検索
  • 実績紹介
  • 物件管理
  • 会社概要・アクセス
  • レジスタ合同会社
  • レジスタ合同会社 賃貸
  • 賃貸ナビ
  • aisatei